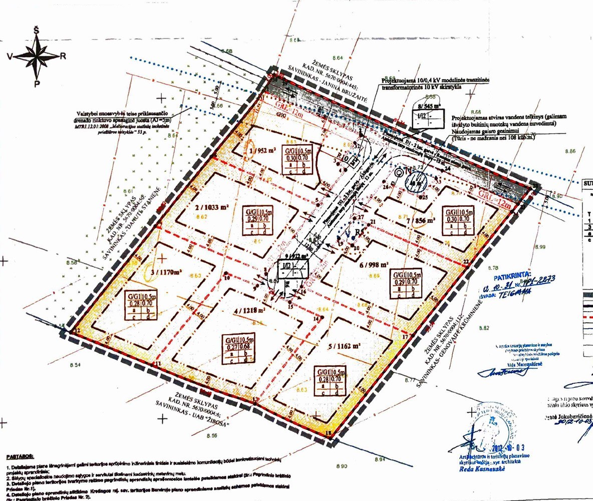
Kretingos r., Vydmantai, Kiauleikių k. Lazdynų gatvėje parduodamas 0.8856 ha žemės sklypas su Detaliuoju projektu. Sklypas detaliuoju planu padalintu į 9 sklypus, iš kurių 7 sklypai namo statybai ir 2 sklypai (9.22 ir 5.45 aro) Susisiekimo ir inžinerinių tinklų koridorių teritorijos. Parduodamas projektas kurio bendras plotas 0.89 ha pardavimo kaina 120.000 Eur. Agentūros ID 414293 tinklapyje. KOMUNIKACIJOS: NĖRA PAPILDOMA INFORMACIJA: Pagrindinė naudojimo paskirtis: Kita; Sklypų užstatymo tankis: 0.27 – 0.30; Sklypo užstatymo intensivumas: 0.68 – 0.70; Leistinas maksimalus pastato aukštis: 10.5 m; Susisiekimo ir inžinerinių tinklų koridorių teritorijos. Sklypai turi registrų centre įregistruotas bylas. Gyvenamosios namų statybos paskirties sklupų bylos parengtos įregistravimui. PAGRINDINĖ SUPROJEKTUOTŲ SKLYPŲ PASKIRTIS NUMATOMA: Pagrindinė naudojimo paskirtis: Kita; Naudojimo būdas: Gyvenamosios teritorijos; Naudojimo pobūdis: Vienbučių ir dvibučių gyvenamųjų namų statybos; NT REGISTRO CENTRO IŠRAŠO DUOMENYS: Kadasrtinė vietovė: Vydmantų k.v. Bendras sklypų plotas: 0.8856 ha; Žemės sklype įrengtos valstybei prikausančios melioracijos sistemos bei įrenginiai 0.8856 ha; Matavimų tipas: Žemės sklypas suformuotas atliekant kadastrinius matavimus; Kelio servitutas- teisė važiuoti transporto priemonėm, naudotis taku, varyti galvijus (viešpataujanis) Kelio servitutas- teisė važiuoti transporto priemonėm, naudotis taku, varyti galvijus (tarnaujantis) Žemės naudmenų našumo balas: 32.7
Skelbimo ID: |
673741 |
Savivaldybė: |
Kretingos r. sav. |
Adresas: |
Lazdynų g., Kiauleikiai |
Sklypo plotas: |
88.56 a. |
Sklypo paskirtis: |
Kita |
Komunikacijos: |
Nėra |
Vlada Simonaitienė, |








