55000 € 5789.47 €/a.
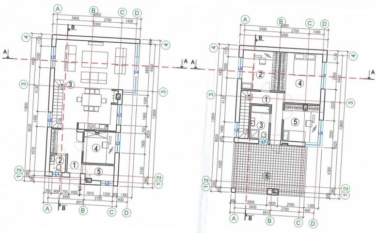
Parduodamas kraštinis sklypas ant tvenkinio kranto namo statybai. Yra ir projektas ir leidimas statybai. Namas 2a su atvira terasa antrame aukšte. Pirmame aukšte suprojektuotos bendros patalpos, antrame - poilsio. Bendras plotas 140 m2. Tarp sklypo ir tvenkinio yra bendro naudojimo zona, todėl jokia statyba priešais sklypą negalima.
Skelbimo ID: |
152161 |
Savivaldybė: |
Klaipėdos r. sav. |
Adresas: |
Klipščiai |
Sklypo plotas: |
9.5 a. |
Sklypo paskirtis: |
Namo statybai |
Komunikacijos: |
Nėra |
Kontaktai
Brokeris, |
Panašūs skelbimai
Sklypas, Klipščiai
10 a. | Namo statybai
45 000 €Skelbimo ID: 47810



