160000 € 2323.22 €/m²
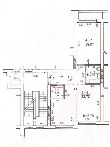
Debreceno g. parduodamas erdvus 2-jų kambarių butas. Namas yra 2004 m. statybos. Butui priklauso vieno automobilio parkavimo vieta požeminiame garaže. Yra balkonas. Butas įrengtas, grindys naturalaus uosio, parduodamas su baldais ir buitine technika. Langai orientuoti į rytų ir vakarų puses. Bute įrengta sauna. Rami vieta, šalia prekybos centras, viešojo transporto stotelės, mokyklos, darželiai.
Skelbimo ID: |
1355041 |
Savivaldybė: |
Klaipėdos m. sav. |
Adresas: |
Debreceno g., Klaipėda |
Plotas: |
68.87 m² |
Kambarių skaičius: |
2 |
Aukštas: |
1 iš 6 |
Pastatymo metai: |
2004 |
Pastato tipas |
Mūrinis |
Balkonai: |
Yra |
Kontaktai
Dovilė, |
Panašūs skelbimai
2k. butas, Kuosų g., Gandrališkės, Klaipėda
63 m² | 16/34
145 000 €Skelbimo ID: 1329071
2k. butas, Dariaus ir Girėno g., Centras, Klaipėda
71 m² | 3/9 | 2006 m. | Nauja statyba | Tvarkingas
150 000 €Skelbimo ID: 1354573
2k. butas, Klaipėda
67 m² | 21/22
165 000 €Skelbimo ID: 1355168

