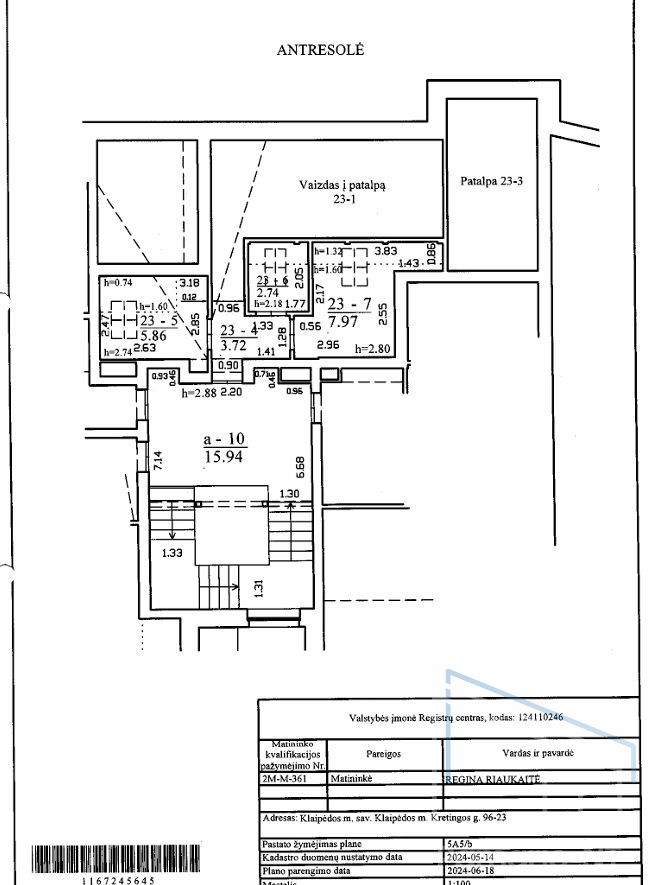
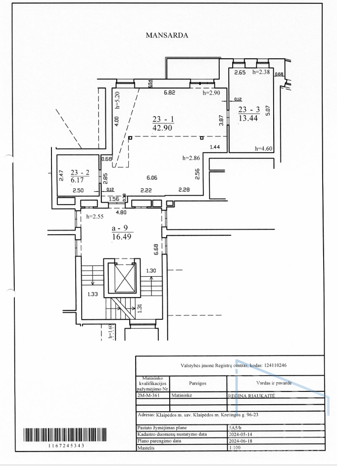
Šiaurinėje Klaipėdos miesto dalyje, Kretingos g. 96, šalia Danės upės, statomas daugiabučių gyvenamųjų namų kvartalas. Parduodamas 4-jų kambarių mansardinis butas, per 2 aukštus 'J'' korpuse. Bendra informacija: - bendras buto plotas - 82,80 kv.m - svetainė su virtuve - 42,90 kv.m - miegamasis - 13,44 kv.m - miegamasis - 7,97 kv.m - miegamasis - 5,86 kv.m - vonios kambarys - 6,17 kv.m - wc - 2,74 kv.m - prieškambaris - 3,72 kv.m - butui priklauso balkonas - orientacija - rytai - paskirtis: gyvenamoji. *yra galimybė įsigyti antžeminę parkavimo vietą. ELEKTROMOBILŲ ĮKROVIMO STOTELĖS Prie kievieno namo bus įrengta elektromobilių įkrovimo stotelė. Iš viso -18 elektromobilių įkrovimo stotelių. A+ ENERGERINĖ NAUDINGUMO KLASĖ Projektas atitinka aukšto energetinio efektyvumo A+ klasės standartą. KOKYBIŠKAS BŪSTAS Šiame projekte taikomos technologijos užtikrina namų sandarumą bei puikią šilumos ir garso izoliaciją butuose. Energetinė naudingumo klasė A+. Garso izoliacijos klasė C. Kvartale statomi namai - mūriniai. Gyventojų patogumui kiekviename name įrengiami liftai. Butuose sumontuoti plastikiniai langai 2 kamerų ir 3 stiklų paketais su vidiniu selektyviniu stiklu. APLINKA Šalia gyvenamųjų namų bus įrengta vaikų žaidimo aiktelė ir aktyvaus poilsio zona. Jaukumo teiks pasivaikščiojimo ir dviračio takai, želdiniai, pilnai sutvarkyta aplinka. Puiki vieta praleisti laiką gamtoje niekur nevažiuojant, šalia nuosavų namų. TRANSPORTAS Šalia kvartalo yra įrengtos viešojo transporto „Kino Studija“ (9, 17, 23) ir „Ligoninės“ (17, 31, 15B, 32,23) stotelės. Dviračių takas nuo kvartalo driekiasi per Girulių girią iki jūros. Atstumas iki jūros - 3,3 km. Šiais takais galima pasiekti Girulių ir Melnragės paplūdimius,nuvykti į Karklės gyvenvietę ar Palangos miestą. Kvartale bus pastatyti keturių ir penkių aukštų su mansarda gyvenamieji namai. Butų plotai nuo 35 iki 105 kv.m. Susisiekite ir aptarsime detaliau ! _________________________________________________________ UAB Pamario NT Objekto apžiūra ir konsultacija yra nemokama. Skambinkite ir suteiksiu daugiau informacijos, susitarsime dėl apžiūros. Bendradarbiaujame su visais bankais ir kredito unijomis, turto vertintojais. Palankios paskolų sąlygos uždirbantiems ne Eurais. Juridiškai teisingai paruošiame nekilnojamojo turto pirkimo - pardavimo dokumentus. Daugiau pasiūlymų rasite:
Skelbimo ID: |
1354884 |
Savivaldybė: |
Klaipėdos m. sav. |
Adresas: |
Kretingos g., Klaipėda |
Plotas: |
82.8 m² |
Kambarių skaičius: |
4 |
Aukštas: |
6 iš 6 |
Pastatymo metai: |
2024 |
Nauja statyba: |
Taip |
Pastato tipas |
Mūrinis |
Šildymas: |
Kolektorinis (Centrinis) |
Būklė: |
Dalinė apdaila |
Balkonai: |
yra |
Mindaugas Beržanskis, |
4k. butas, Kretingos g., Klaipėda
89 m² | 5/5
169 540 €Skelbimo ID: 1330915
4k. butas, Kretingos g., Klaipėda
85 m² | 6/6
174 373 €Skelbimo ID: 1342924
4k. butas, Liepų g., Centras, Klaipėda
77 m² | 4/5 | 1980 m. | Dalinė apdaila
195 000 €Skelbimo ID: 1358064



