Tauralaukyje, naujai suformuotame kvartale "Vakarų žemė" parduodamas SKLYPAS SU PROJEKTU IR STATYBOS LEIDIMU
Pradėkite statybas iškart !
Sklypas su iki smulkmenu suprojektuotu namo projektu.
Atvesta elektra, sumokėti infrastruktūros mokesčiai, išimtas leidimas. Visi kaimynai jau statosi namus. Kvartale visos komunikacijos, pastatytas gatvių apšvietimas, kvartalas bus išasfaltuotas ir tvarkingas. Besivystant kvartalui sklypo kaina tik didės !
-NAMŲ VALDOS SKLYPAS 6,78a.
-VISOS MIESTO KOMUNIKACIJOS
-APŠVIESTAS NAUJAS KVARTALAS
-ŠALIA MIŠKELIS
-ASFALTUOTAS PRIVAŽIAVIMAS IKI PAT SKLYPO (Pradėti asfaltavimo darbai Tauro 9-osios gatvės
-KVARTALO APŠVIETIMAS
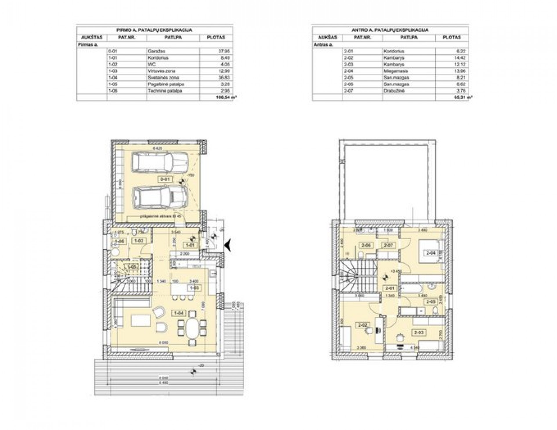
-IKI SMULKMENŲ SUPROJEKTUOTAS 172 kv.m NAMAS SU DVIGUBU GARAŽU (134 kv.m GYVENAMOSIOS PATALPOS)
-SUMOKĖTI INFRASTRUKTŪROS MOKESČIAI, ATVESTA ELEKTROS APSKAITOS DĖŽĖ PRIE SKLYPO
-TAURO 8 osios -9 osios GATVIŲ SUSIKIRTIME BUS PASTATYTĄ VAIKŲ ŽAIDIMŲ AIKŠETĖ
- PALEI MIŠKELĮ PLANUOJAMAS PĖSČIŲJŲ TAKAS ........................................................................................
Profesionali pagalba parduodant, nuomojant ir įsigyjant nekilnojamąjį turtą:
- Dokumentų patikra;
- Įgyjamo turto vertinimo organizavimas;
- Patrauklūs bankų pasiūlymai;
- Tvarkomi dokumentai su valstybės parama;
- Parengiamos sutartys;
- Teismo leidimo dokumentų tvarkymas;
- Teisinio pobūdžio konsultacija.
Daugiau informacijos tel.: +370 611 67799 Danguolė
Skelbimo ID: |
1339609 |
Savivaldybė: |
Klaipėdos m. sav. |
Adresas: |
Žaibo g., Tauralaukis, Klaipėda |
Sklypo plotas: |
6.78 a. |
Sklypo paskirtis: |
Namo statybai |
Komunikacijos: |
Nėra |
Danguolė, |
Sklypas, Aukštaičių g., Klaipėda
6.07 a. |
68 500 €Skelbimo ID: 182552
Sklypas, Karlskronos g., BIGo, Klaipėda
7.5 a. | Namo statybai
70 000 €Skelbimo ID: 224167
Sklypas, Jaunystės g., Klaipėda
6 a. |
55 504 €Skelbimo ID: 255492




