Parduodamas Individualus A++ klasės namas su didele terasa į pietų pusę,
BENDRA INFORMACIJA
- erdvus plotas 80kv. m.;
- 4 kambarių skaičius;
- 2 aukštų;
- šildymas, oras-oras;
- statybos metai 2023m.;
- gyvenamoji paskirtis;
- namo tipas mūrinis;
- priklauso žemės 4,5a;
- didelė terasa 6×2m.
LAUKO:
– perdangos – gelžbetoninis monolitinis perdengimas;
– sienos – 20 cm dujų silikato blokelių mūras, apšiltintos 28 cm vatos, vidinės sienos 12 cm silikato blokeliai;
– stogas – dvišlaitis, apšiltintas 40cm vata, dengtas Ruuki skarda;
– fasado apdaila – tonuota termo mediena;
– vidinės sienos – mūrinės, tinkuotos.
VIDAUS
– išvedžiota elektros instaliacija;
– išvedžiota santechnika;
– sienos tinkuotos;
– įrengti betoniniai laiptai;
– pirmo ir antro aukšto grindys išbetonuotos;
– rekuperacinė sistema (sumontuoti vamzdynai be rekuperacinės įrangos);
– kondicionavimo sistema (sumontuoti vamzdynai be kondicionavimo įrangos).
KITA
Visos miesto komunikacijos: vandentiekis, kanalizacija, elektra, dujos, vanduo: miesto.
VIETA IR INFRASTRUKTŪRA
Monciškės, tai nuostabus,žalias,ramybe kvėpuojantis kvartalas Palangoje prie Baltijos jūros. Tik 15 min. pėsčiomis nuo plataus balto smėlio paplūdimio. Paplūdimyje rasite: kavinę, pirtį ant jūros kranto, vandens pramogų nuomos punktą, tinklinio aikšteles. Džiugina naujai sutvarkytas/ praplatintas dviračių – pėsčiųjų Ošupio takas. Netoliese skaniai pamaitins „Dvi Lapės“, „Gintarautojai“. Kvartalas sparčiai besiplečiantis, aplinkui vienas po kito statomi nauji namai, kuriasi nauja bendruomenė tarp Palangos ir Šventosios.
KITA INFORMACIJA
Parduodamas labai erdvus 76kv., A++ namas,tačiau realaus ploto gausite net 92kv.! Name yra net 4 kambariai,kas šiuo metu tikras iššūkis rasti! Bus įrengtas uždaras, keturių namų kvartalas, sutvarkytas gerbūvis, apželdinta aplinka, įvažiavimas išklotas trinkelėmis, numatytas barjeras patekimui į teritoriją, kiekvienam namukui priklausys du parkingai. Namukai parduodami su daline apdaila, tačiau galimas pilnas įrengimas pagal jūsų norus. Dalinė apdaila bus baigta jau šių metų gegužės mėnesį! Sutvarkyti aplinka numatyta 2023m. vasarą.
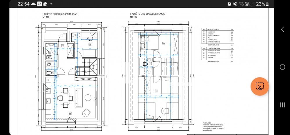
IŠPLANAVIMAS
Pirmas aukštas:
Tambūras/drabužinė, sandėliukas, pagalbinė patalpa, virtuvė su svetaine (langai pietų-vakarų), darbo kambarys (langas į šiaurę), tualetas, holas-laiptai.
Antras aukštas:
Du miegamieji(langai šiaurės ir pietų), vonia su wc.
Tai išties puikus pasirinkimas nuolatiniam gyvenimui, tačiau tinkamas poilsiui, bei nuomai!
Skelbimo ID: |
1339513 |
Savivaldybė: |
Palangos m. sav. |
Adresas: |
Monciškės g., Monciškės, Palanga |
Plotas: |
80 m² |
Sklypo plotas: |
4.5 a. |
Kambarių skaičius: |
4 |
Aukštų |
2 |
Pastatymo metai: |
2023 |
Nauja statyba: |
Taip |
Pastato tipas |
Mūrinis |
Namo tipas: |
Namas (gyvenamasis) |
Šildymas: |
Kitas (Autonominis) |
Būklė: |
Suremontuotas |
Edita Šupčinskienė, |
Namas, Vaivorykštės g., Kunigiškės (Kontininkai, Paliepgiriai, Užkanavė), Palanga
78 m² | sklypas 3 a. | 3 Aukštas | 2022 m. | Nauja statyba | Suremontuotas | Dujinis šildymas
290 000 €Skelbimo ID: 1316990
Namas, Monciškės g., Monciškės, Palanga
84 m² | sklypas 2.5 a. | 2 Aukštas | 2019 m. | Nauja statyba | Suremontuotas | Dujinis šildymas
285 000 €Skelbimo ID: 1330084
Namas, Paliepgirių kelias, Kunigiškės (Kontininkai, Paliepgiriai, Užkanavė), Palanga
80 m² | sklypas 2 a. | 2 Aukštas | 2021 m. | Nauja statyba | Suremontuotas | Kitas šildymas
239 950 €Skelbimo ID: 1344931









