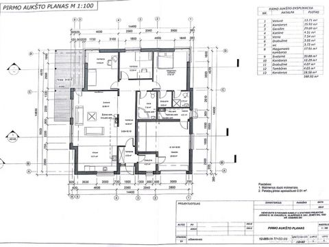
Parduodamas sklypas namo statybai Klaipėdos r. sav. , Sendrvario sen. , Gvildžių k. , sklypo plotas 0,101ha, netoliese Laukžemių tvenkinys. Sklypas suformuotas atliekant kadastrinius matavimus, remiantis grunto stebėjimais vietovėje, gruntą sudaro smėlis ir molis. Užstatymo plotas 338 kv. m. , sklypo užstatymo intensivumas 23% pagal det. pl 25% sklypo užstatymo tankumas projektuojamas 17% pagal det. pl. 40%, su inžinieriniais tinklais: vandentiekio įvadas (d32) 0,0080 km A. Zona-5m, buitiniu nuotekų išvadas(d110) 0,0090 km A. Zona 5m, elektros įvadas 0,0090 km A. Zona-1 m, lietaus nuotekų išvadas (d110) 0,0880 km A. Zona-5m. Galima pirkti su projektuotu vieno aušto namu: bendras plotas: 168,92 m2. gyvenamasis : 93,72 m2. pagalbinis: 45,51 m2. garažas: 29.69 m2. naudingas plotas: 139,23 m2 Pastato auštis projektuojamas 5,72 m, pagal det. pl. 10,50 m. Energinio naudingumo klasė C, akustinio komforto sąlygų klasė E, pastato atsparumo ugniai II. Atitvarų šilumos perdavimo koeficientas: Sienų 0,189 W/m2K Langų 1,5 W/m2K Denginio 0,156 W/m2K Kaina 12 000€ Telefonas pasiteiravimui. : 867795954, 860832257 Klaipėda
Skelbimo ID: |
1307896 |
Savivaldybė: |
Klaipėdos r. sav. |
Adresas: |
Gvildžiai |
Sklypo plotas: |
10 a. |
Sklypo paskirtis: |
Namo statybai |
Komunikacijos: |
Nėra |
Sidėras, |
Sklypas, Gvildžiai
10 a. |
12 500 €Skelbimo ID: 46894








