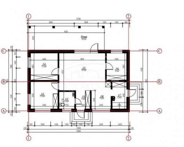
PROJEKTAS SUSTABDYTAS. 6 SKLYPAI BUS STATOMI NAMAI KVECIUOSE,LINK PALANGOS. Rezervuojami naujos statybos A+klasės,vieno aukšto,gyvenamieji namai su daline apdaila. Bendra informacija: Į KAINĄ ĮSKAIČIUOTA: -Sienos silikatiniai blokeliai. -Apšiltinimas neoporu 30cm+tinkavimas. -Stogas uždengtas čerpe. -Stogo apšiltinimas. -santechnika. -daline vidaus apdaila. -Rami,besiplečianti kaiminystė! -sklypas 5a. -elektra. -kanalizacija. -namu statyba planuojama baigti 2021metais. Eksplikacija: -Bendras plotas -79,55. -Svetainė sujungta su virtuve- 33,65. -Miegamasis 1-11.56kv.m. -Miegamasis 2-11.56kv.m. -Vaikų kambarys- 8,5kv.m. -Vonia-4,19kv.m. -koridorius-4,14kv.m -Katilinė,sandėliukas-5,95kv.m.
Skelbimo ID: |
1306509 |
Savivaldybė: |
Kretingos r. sav. |
Adresas: |
Kveciai |
Plotas: |
79 m² |
Sklypo plotas: |
5 a. |
Kambarių skaičius: |
3 |
Aukštų |
1 |
Nauja statyba: |
Taip |
Pastato tipas |
Mūrinis/Blokinis |
Namo tipas: |
Namas (gyvenamasis) |
Alina Gakienė, |





