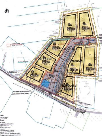
Parduodami 6 sklypai , 8,4 arai, 8,66 arai10,43 arai10,84 arai 10,83 ir 12,59 arai Klaipėdoje prie Labrenciškių, Purmaliuose tarp Plytinės ir Naujosios Kalotės labai gražioje vietoje ant kalniuko netoli Danės upės parduodami sklypai mažaaukščių gyvenamųjų namų statybai. Gatvėje komunikacijos paklotos ir suvestos į sklypus. Vanduo, nuotekos, lietaus kanalizacija bus prijungta prie miesto (pagal AB Klaipėdos Vanduo potvarki 2012-06-12 Nr.2012/S.02-365 Numatomas įgyvendinimo terminas turi būti 2013 m.balandžio mėn.). Pagal sutartį su AB LESTO elektra turėtu būti privesta birželio mėn..Yra visi komunikacijų projektai, sąmatos ir leidimai. 1 aro kaina 9000 lt. 8,4 arai kaina 76500 lt. Tel: 860092552, 864641282 Klaipėda
Skelbimo ID: |
1304444 |
Savivaldybė: |
Klaipėdos r. sav. |
Adresas: |
Purmaliai |
Sklypo plotas: |
8.4 a. |
Sklypo paskirtis: |
|
Komunikacijos: |
Nėra |
Vanda, |


